Beratungstermin unter:
+43 676 94 555 46
office@blinke.at
Dipl. Ing. Birgit Linke,
staatlich befugte und beeidete Ziviltechnikerin
1130 Wien
© blinke (!)
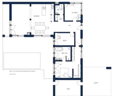
BUNGALOW M.
L-FORM
TERRASSE MIT POOL
STRASSENSEITE
BACK
ERDGESCHOSS 133 m²
HOME
PROJEKTE
BERATUNG
KONTAKT
FERTIGHAUS
Dipl. Ing. Birgit Linke,
staatlich befugte und beeidete Ziviltechnikerin
1130 Wien
© blinke (!)
BUNGALOW K.
L-FORM
TERRASSE MIT POOL
STRASSENSEITE
ERDGESCHOSS 133 m²
GARTENSEITE